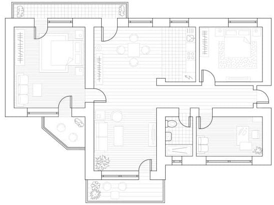
Caractéristiques :
Un séjour spacieux, cuisine, dégagement, suite parentale + salle d’eau, chambre, salle d’eau et de grands balcons.
Claire Matin . Bordj el Kiffan